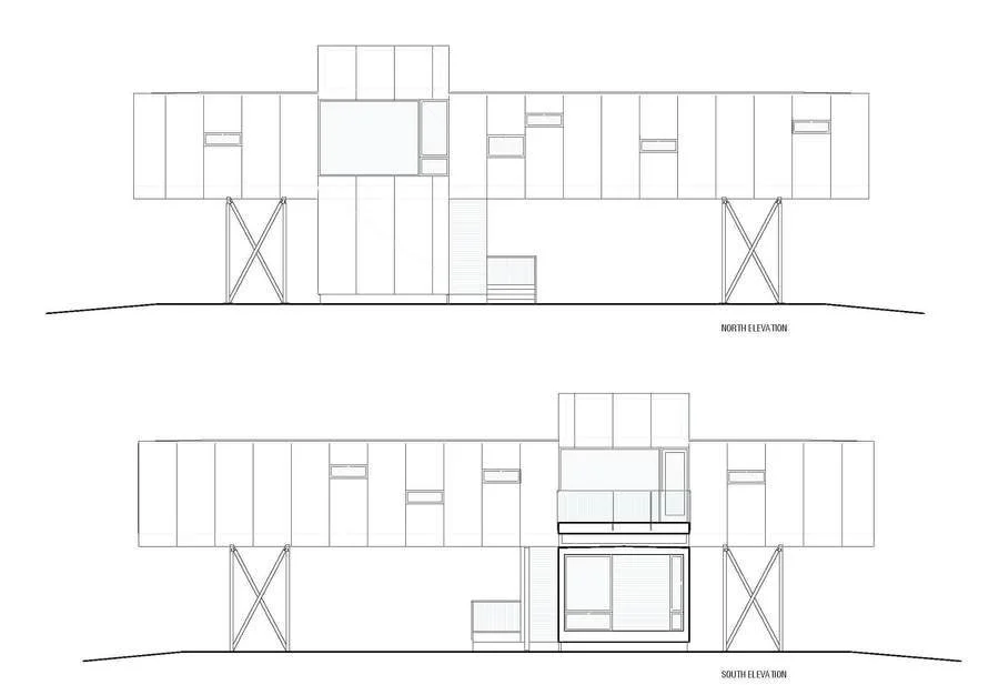
This house prototype touches the earth lightly and demonstrates new ways to minimize the impact of building in nature. It was designed for a site where, due to the presence of nearby wetlands, the building footprint had to be small.

This prototype utilizes an ecologically friendly modular design which is fast and easy to build. It saves energy, time, money, and natural resources by systematically prefabricating units in a factory rather than assembling materials bit by bit on site. This allows sitework and building production to occur simultaneously.

The Tread Lightly house would be constructed from two modules placed on eight point-footings. Once the modules are completed in the factory, it is estimated that on-site assembly will take one day.

Status
Designed

Info
2008
Residential/Modular
0 sf
Remote Environment

Previous
Previous

Red Hook Green Residence